인덕원역은 여러 철도가 지나간다는 내용이 발표되면서 핫한 지역이 되었지만, 최근에 하락기를 맞이하면서 잠잠해졌습니다만, 교통공사는 진행되고 있고 앞으로 좋아질 것이라 생각하고 있습니다. 그래서 이번 포스팅에서는 인덕원역 주변에 대해서 알아보겠습니다.

인덕원역 주변 현재 부동산 분위기
인덕원역의 주소지는 경기도 안양시 동안구 관양동입니다. 해당 주변의 부동산 분위기를 부동산 지인 사이트에서 검색해보았습니다.
(안양 관양동, 평촌동과 의왕 내손동, 포일동) 4개동 모두 비슷한 차트를 그리고 있습니다. 전세/월세 거래량은 거의 변화가 없는 반면 매매의 경우는 거래량이 매우 낮아진 상태이고, 최근에 되서야 조금 거래량이 오른 차트입니다. (그림 상 아래 차트)
그림 상 위 차트는 시장 강도 차트인데, 차트의 형태는 비슷합니다. 매매/전세 모두 다시 상승하고 있는 분위기입니다.
![]() |
![]() |
| 안양시 동안구 관양동 시장 강도와 거래량(매매/전세) | 안양시 동안구 평촌동 시장 강도와 거래량(매매/전세) |
![]() |
![]() |
| 의왕시 내손동 시장 강도와 거래량(매매/전세) | 의왕시 포일동 시장 강도와 거래량(매매/전세) |
인덕원역 교통호재
인덕원역에는 현재 4호선이 지나가지만 추가로 월곶~판교선, 인덕원~동탄선, GTX-C 노선이 추가될 예정입니다. 따라서 인덕원역에서 웬만한 지역은 모두 이동이 가능할 것으로 보입니다.
현 시점기준으로 개통 예상 및 목표 시점은 아래와 같습니다.
- 월곶판교선 : 2030년 개통 예상
- 인덕원동탄선 : 2027년 개통 예상
- GTX-C 노선 : 2028년 준공 목표
월곶 판교선은 본 블로그에서 다룬적이 있으니 궁금하시면 아래 포스팅을 참고하시면 됩니다.
2023.07.22 - [부동산/부동산 정보] - 월곶판교선, 월판선 관련 정리 : 노선도, 진행상황
월곶판교선, 월판선 관련 정리 : 노선도, 진행상황
이번 포스팅에서는 월곶판교선에 대해서 알아보겠습니다. 월곶판교선은, 월곶~광명~판교간 약 40km 정도의 복선전철을 신설하는 사업으로 초기 2017년도 발표 당시에는 사업기간이 2016년~2024년이
forliberty.co.kr
인덕원 주변 도시개발사업
인덕원역주변 개발이 될 것으로 예상되는 부분은 크게 2부분이 있습니다. 첫번째는 과천정보타운역이며, 두번째는 인덕원 도시개발사업입니다.

과천정보타운역은 4호선 인덕원역과 과천역 사이에 만들어질 예정입니다. 위 지도를 참고하시면 거의 정확하게 인덕원역과 과천역 중간에 위치할 것임을 알 수 있습니다. 또한 해당 주변으로 과천지식정보타운이 위치하기 때문에 일자리가 많이 들어설 것이고, 많은 주택이 들어설 예정입니다. 과천정보타운역은 과천시 갈현동 333-3 일대에 만들어질 예정이며, 현재는 2027년 이후 준공 및 2028년 이후에 개통할 예정입니다.
안양시에서는 인덕원 주변 도시개발, 광역전철 개발을 추진하기 위한 공기업을 설립한다는 기사가 발표되었습니다. 공기업이 만들어진다면 도시개발사업의 추진이 더 빨라질 것으로 기대하고 있습니다. 사업 시행자는 경기주택도시공사와 안양도시공사가 참여하며, 내년 하반기 착공을 목표로 하고 있습니다. 현재는 실시계획인가 절차를 진행중에 있습니다. (준공 목표는 2028년입니다.) 인덕원역은 앞으로 철도망이 많이 지나가는 만큼 역사 주변을 개발하여 공공지식산업센터를 조성하여 일자리를 창출하고, 역세권 임대주택을 공급하여 주거안정도 도모할 계획입니다.

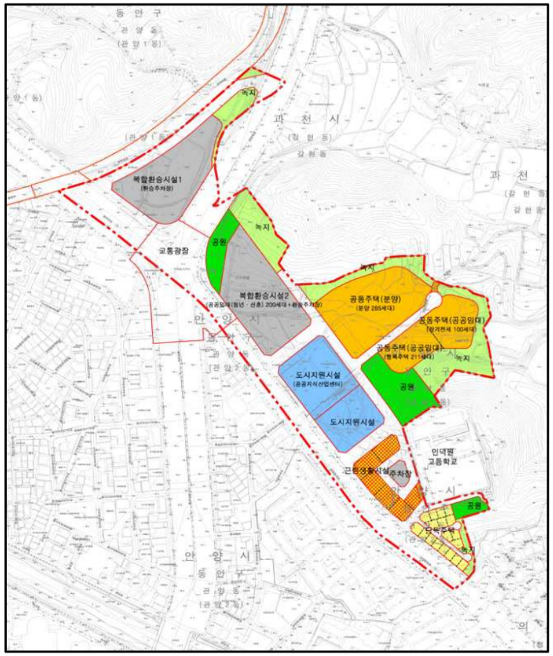
아래는 안양시 홈페이지에서 확인한 인덕원역 주변 토지이용계획입니다. 인덕원역과 인덕원 고등학교 사이에 많은 시설이 들어설 것으로 보입니다.

인덕원역 주변은 앞으로 많은 개발과 발전이 이루어질 것으로 보입니다. 이제 위에서 언급된 개발계획이 예정대로 진행되는지를 잘 관찰해야 할 것입니다.
'부동산 > 부동산 정보' 카테고리의 다른 글
| KB 부동산 자료 리뷰(8.1 기준) (0) | 2023.08.01 |
|---|---|
| 한국 부동산원 7월 4번째 주 아파트 동향 리뷰 (0) | 2023.07.31 |
| 신안산선 정보 정리 : 노선도 및 진행상황 (0) | 2023.07.24 |
| 월곶판교선, 월판선 관련 정리 : 노선도, 진행상황 (0) | 2023.07.22 |
| 위례신사선, 위신선 관련 정리 : 노선도 및 진행상황 (0) | 2023.07.21 |




댓글